Kérdése van? LÉPJEN VELÜNK KAPCSOLATBA!

GYORS KAPCSOLATFELVÉTEL!

M5T6
M5T6 M5T6 M5T6 M5T6 M5T6 M5T6
Alaprajz letöltése (pdf)

M5T6

M5T6 – Okos választás nagycsaládosoknak!

Alapterület
91,5 m2
Szobák száma
3 szoba + nappali
Hány főnek ajánljuk
2 felnőtt és 3 gyerek
Energetikai besorolás
A (napelem nélkül)

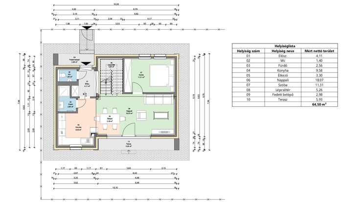
Pontos helyiséglista – Földszint

Helyiség neve terület (m2)
Előszoba 4,11
WC 1,40
Fürdő 2,56
Konyha 9,58
Étkező 3,30
Nappali 18,07
Szoba 1 11,31
Lépcsőtér 5,26

Pontos helyiséglista – Földszint

Helyiség neve terület (m2)
Lépcsőtér 5,23
Közlekedő 4,84
Fürdő 4,85
Szoba 2 8,93
szoba 3 12,06

Műszaki információk

Masterplast 3D Moduláris családi házak standard műszaki tartalma, felszereltsége:

Lépj velünk kapcsolatba

MASTERPLAST MODULHOUSE KFT.

8143, Sárszentmihály, Árpád u. 1/A

+36 70 658 2239

modulhouse@masterplast.hu

Kérdése van?
Írjon most nekünk!

Helyes formátum például +36 (1) 123-4567, vagy (20) 123-4567